Best Offers by Tuesday 13th August (Unless Sold Prior)
In the ever-growing green landscapes of Modbury Heights, the perfect opportunity for both investors, first-time homebuyers, and families has arrived. Ilana De Palma from Deluxe Real Estate is proud to present this refreshing opportunity. Nestled on a spacious corner block, this solid winner consisting of 3-bedrooms combines thoughtful design and practicality, with space and comfort in an ever-adaptable floorplan. The sturdy brick façade not only promises durability but also offers timeless appeal that will stand the test of time. This is more than just a home; it's a canvas waiting for your vision. Whether you're looking to enter the property market, seeking a secure investment, or searching for a family home with ample room to grow, this solid gem on a corner throw offers the best of both worlds. Don’t miss out on the opportunity to transform this house into your dream home or the investment that sets you up for your future.
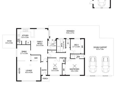
FEATURES TO NOTE:
+ Stepping inside, you are welcomed by an abundance of natural light that bathes the open plan living area, creating an inviting atmosphere perfect for family gatherings or entertaining friends.
+3 Bedrooms, with Master Bedroom featuring ensuite bathroom and built in robes.
Bedroom 2 & 3 featuring built in robes.
+Adaptable flexible floorplan, with several living areas to suit, including:
- an open plan lounge living area with 80's retro bar and a stand or bench style seating.
- A formal dine area, with wood fenced features, that exudes those warm 80's vibrations
- plus, an open plan kitchen and meals area that offers versatility and ease.
+The well-appointed spacious kitchen with gas cooking, dishwasher and ample bench and cupboard space, invites culinary creativity and lasting finishes.
+Main bathroom with Bath, Shower and Vanity
+ Separate w/c
+ Ample internal storage
+ Heating and Cooling
+ Expansive corner block
+ Undercover entertaining area, with plenty of rear yard for kids and pets alike
+ Double carport, with drive through access allows you to house, numerous vehicles, the trailer, camper, boat and possibly more.
+ Rear drive through access to the shed, which can be used as a work site, enthusiast car site, or further allocated parking
+ Many options, offering flexibility to the astute purchaser
With the increasing demand for properties in well-located areas, this home is not just a residence; it’s a strategic purchase. Investors will appreciate the potential for rental income, while families will find everything they need right at their doorstep—parks, shops, and transport links are seconds away. A lifetime investment is yours for the taking.
Not to be missed. For more information on this exciting and refreshing opportunity please contact Ilana De Palma on 0412 949 521.
RLA 294 439
- Evaporative Cooling
- Gas Heating
- Courtyard
- Fully Fenced
- Outdoor Entertainment Area
- Secure Parking
- Shed
- Built-in Wardrobes
- Dishwasher


















































